Lange Reihe 16 - Moderne Wohnungen im Jugendstil in Leipzig-Stötteritz (Park in 120m)
Die umfängliche und grosszügige Sanierung (Aussenfassaden, Treppenhäuser, Hof, Keller, Dachboden sowie aller Wohnungen mit Umbau und Luxusausstattung, neue effiziente Zentralheizungsanlage etc.) des im Jugendstil 1905 erbauten Duplex-Mehrfamilienhauses wurde im Sommer 2018 fertiggestellt.
Die Arbeiten wurden in enger Zusammenarbeit mit dem Denkmalamt Leipzig durchgeführt.
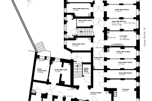
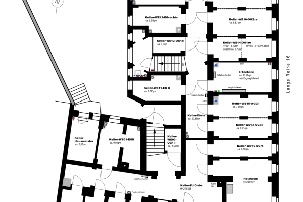
Es verfügt über zwei Treppenhäuser, zwei Hauseingänge mit 17 Wohneinheiten, 19 Kellerräume, einem Hof, einem Fahrradraum strassenseitig und der Ausbaumöglichkeit zweier Dachgeschosswohnungen (Planung und Genehmigung vorhanden).
Der Erstbezug der 8 Wohnungen in der Lange Reihe 16 begann ab 1.4.2018, vollvermietet seit Sommer 2018.
Wohnungsgrössen (1.Haushälfte/Lange Reihe 16):
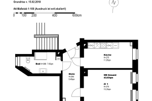
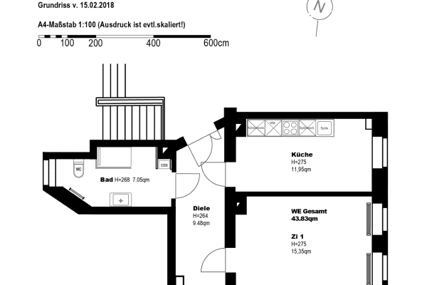
- WE11 EG Links - 43.83qm - 1 Zi., Bad, Küche / Keller ca. 7qm
- WE12 EG Rechts - 44.62qm - 1 Zi., Bad, Küche / Keller ca. 6.5qm
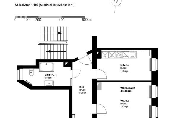
- WE13 OG1 Links - 44.46qm - 1 Zi., Bad, Küche / Keller ca. 3qm
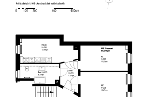
- WE14 OG1 Rechts - 54.88qm - 2 Zi., Bad, Küche / Keller ca. 5.7qm
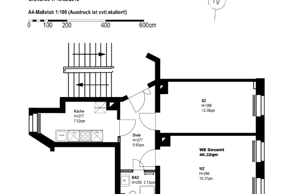
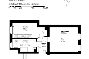
- WE15 OG2 Links - 46.32qm - 2 Zi., Bad, Küche / Keller ca. 7.7qm
- WE16 OG2 Rechts - 55.09qm - 2 Zi., Bad, Küche / Keller ca. 8.8qm
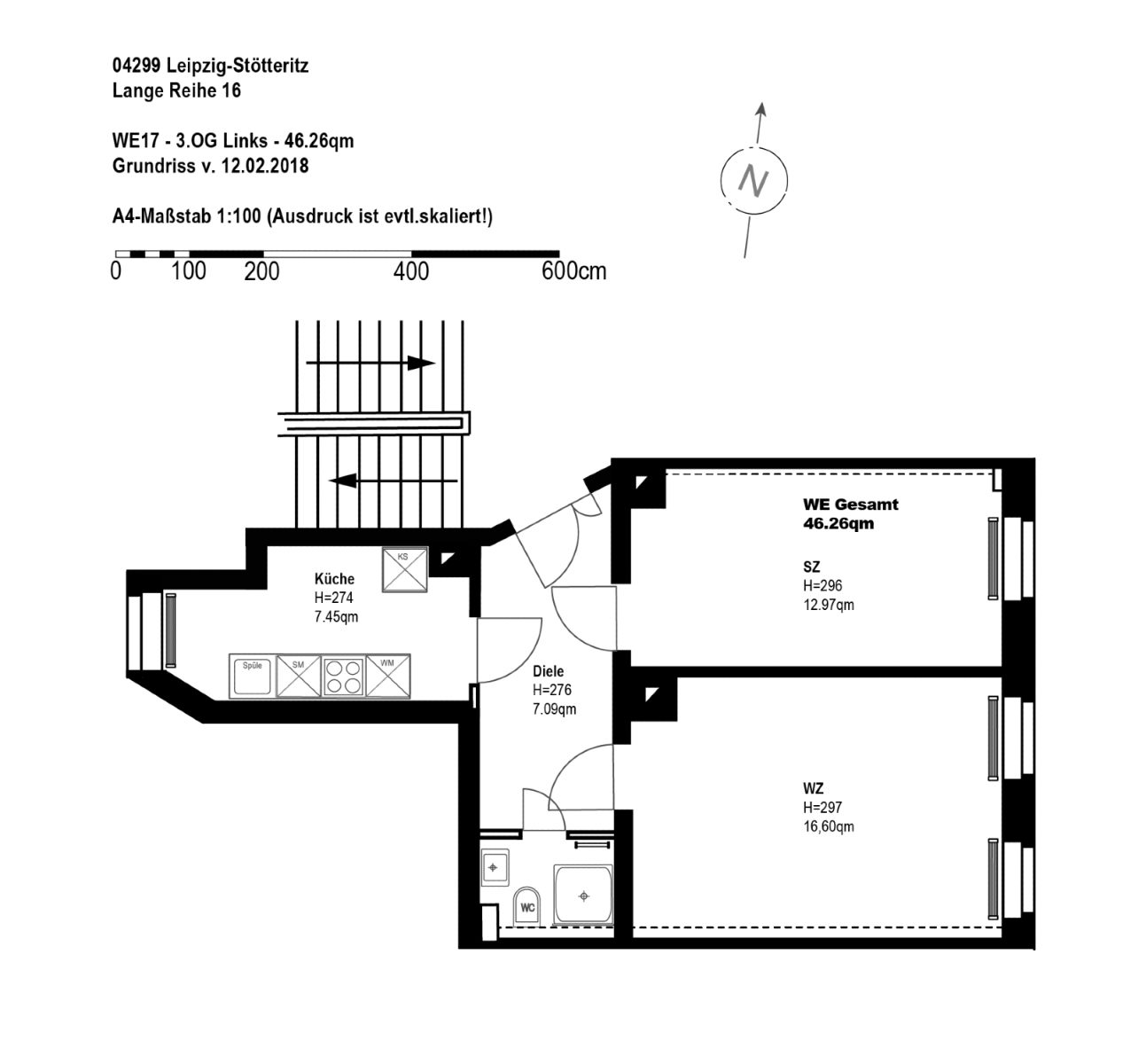
- WE17 OG3 Links - 46.26qm - 2 Zi., Bad, Küche / Keller ca. 6.7qm
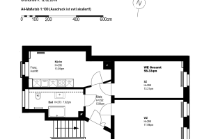
- WE18 OG3 Rechts - 56.33qm - 2 Zi., Bad, Küche / Keller ca. 8.7qm
- WE19 OG4: Dachboden - Genehmigung und Planung zur DG-Wohnung vorhanden!
Besichtigungstermine bitte hier per Email vereinbaren:
Fotogallerie Mietwohnungen LR16
Ausstattungsmerkmale (nach Sanierung):
- Top-saniertes denkmalgeschütztes Treppenhaus mit Original-Wohnungstüren (Brand,Schall-und Staubschutz)
Terazzoböden und Eichenholztreppen sowie Rauchmelder und Feuerlöscher - Die maroden Sanitär-und Abwasserleitungen incl. Steigestränge sowie Elektrik wurde komplett erneuert.
- Neue Trinkwasser-Filteranlage und Entkalkungsanlage
- Neue Gas-Zentralheizung in effizienter ecoTec Brennwerttechnik
- Sensible Wohnungssanierung zwischen Jugenstilbestand und modernen Designelementen (siehe Fotogallerie)
mit Schallisolierung zw. den Wohnungen - Hochwertiger Feinputz mit biolog. Farben
- Designer-Vinylboden (Gerflor Artline)
- Hamburger Fussleisten
- Mamorfensterbänke (ital. Carrara)
- Elegante Planheizkörper (Buderus/Brötje), Heizleitungen unter Putz
- Küche mit Franz. Austritt (WE14 und WE18)
- LED-Deckenstrahler in Diele und Bad
- Voll ausgestattetes Tageslichtbad (ausser WE15 und WE17 ohne Fenster)
- Massangefertigte, bodengleiche Walk-In-Regendusche (Villeroy&Boch)
- Hochwertige Keramikelemente von Keramag iCon-Serie
- Armaturen von Hans Grohe
- Hochpreisige italienische Keramikfliesen und kalibrierte Wandfliesen
- LED-Bad-Spiegel (Villeroy&Boch)
- Waschtischunterschrank oder Badschrank von Keramag iCon
- Handtuchheizkörper (Zehnder Subway)
- Handtuchhaken, Toilettenpapierhalter
- Grosszügige Anzahl Steckdosen und Multimedia-Dosen (Kabel-TV/Radio/Internet/Telefon) von Busch-Jaeger Future Line
- Rauchmelder
- Digitale Türsprechanlage Elcom
- Neue Briefkastenanlage
- Vom Treppenhaus zugänglicher Hof mit neuem Zaun in Sibirischer Lärche
- Kellerräume mit neuem Estrich und neuen Holzgattertüren
Fotogallerie Mietwohnungen Lange Reihe 16
© Copyright of all images | Peter Cerveny
