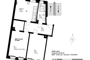
Ferdinand-Jost-Str. 43 - Moderne Wohnungen im Jugendstil in Leipzig-Stötteritz (Park in 150m)
Die umfängliche und grosszügige Sanierung (Aussenfassaden, Treppenhäuser, Hof, Keller, Dachboden sowie aller Wohnungen mit Umbau und Luxusausstattung, neue effiziente Zentralheizungsanlage etc.) des im Jugendstil 1905 erbauten Duplex-Mehrfamilienhauses wurde im Sommer 2018 fertiggestellt.
Die Arbeiten wurden in enger Zusammenarbeit mit dem Denkmalamt Leipzig durchgeführt.
Es verfügt über zwei Treppenhäuser, zwei Hauseingänge mit 17 Wohneinheiten, 19 Kellerräume, einem Hof, einem Fahrradraum strassenseitig.
Für den Ausbau zweier weiterer Wohnungen im Dachgeschoß mit Blick über Leipzig sind Planung und Genehmigung vorhanden.
Die Wohnungen sind z.Zt. für etwa 7-8.50€/qm vermietet und sind ein Projekt für preiswertes Wohnen in hochwertigen Wohnungen.
Der Erstbezug der 9 Wohnungen in der Ferdinand-Jost-Str. 43 begann ab Sommer 2018, vollvermietet seit Herbst 2018.
Wohnungsgrössen (2. Haushälfte/Ferdinand-Jost-Str. 43):
- WE01 EG Links: 61,88qm - 3 Zi., Bad, Küche / Keller ca. 9,80qm
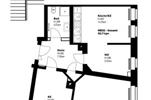
- WE02 EG Rechts: 50,71qm - 2 Zi., Bad, gr. Wohnküche, Einbauküche Siemens, Abstellraum / Keller ca. 9,64qm
- WE03 OG1 Links: 59,97qm - 2 Zi., Bad, Küche / Keller ca. 2,50qm
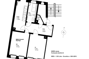
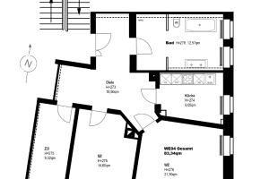
- WE04 OG1 Rechts: 83,34qm - 3 Zi., Bad, Küche, Balkon / Keller ca. 7,24 qm
- WE05 OG2 Links: 60,76qm - 2 Zi., Bad, Küche / Keller ca. 7,10 qm
- WE06 OG2 Rechts: 87,06qm - 3 Zi., Bad, Küche, Balkon / Keller ca. 8,60 qm
- WE07 OG3 Links: 67,65qm - 2 Zi., Bad, gr. Wohnküche / Keller ca. 6,80qm
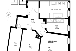
- WE08 OG3 Rechts: 88,15qm - 3 Zi., Bad, Küche, Balkon / Keller ca. 6,40qm
- WE09 OG4 Links: Dachboden - Genehmigung und Planung zur DG-Wohnung vorhanden!
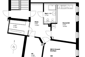
- WE10 OG4 Rechts (Musterwohnung) : 80,90qm - 2.5 Zi., Bad, gr. Wohnküche, neue Einbauküche Siemens, Fussbodenheizung / Keller ca. 6,10qm - (Küche, begehbarer Kleiderschrank 2x2.50m als teilmöblierte Vermietung)
Besichtigungstermine bitte hier per Email vereinbaren:
Ausstattungsmerkmale nach Sanierung:
- Top-saniertes denkmalgeschütztes Treppenhaus mit Original-Wohnungstüren (Brand,Schall-und Staubschutz)
Terazzoböden und Eichenholztreppen sowie Rauchmelder und Feuerlöscher - Die fehlenden historischen Balkone wurden wieder hergestellt und eingebaut
- Die maroden Sanitär-und Abwasserleitungen incl. Steigestränge sowie Elektrik wurde komplett erneuert.
- Neue Trinkwasser-Filteranlage und Entkalkungsanlage
- Neue Gas-Zentralheizung in effizienter ecoTec Brennwerttechnik
- Sensible Wohnungssanierung zwischen Jugenstilbestand und modernen Designelementen (siehe Fotogallerie)
mit Schallisolierung zw. den Wohnungen - Hochwertiger Feinputz mit biolog. Farben
- Designer-Vinylboden (Gerflor Artline)
- Hamburger Fussleisten
- Mamorfensterbänke (ital. Carrara)
- Elegante Planheizkörper (Buderus/Brötje), Heizleitungen unter Putz
WE10 mit Fussbodenheizung - Balkone (WE04, WE06, WE08)
- Küche mit Franz. Austritt (WE03 und WE07)
- LED-Deckenstrahler in Diele und Bad
- Voll ausgestattetes Tageslichtbad mit Badewanne Keramag iCon (WE03, 04, 05, 08)
- Massangefertigte, bodengleiche Walk-In-Regendusche (Villeroy&Boch in WE01, 02, 06, 07, 10 )
- Hochwertige Keramikelemente von Keramag iCon-Serie
- Armaturen von Hans Grohe
- Hochpreisige italienische Keramikfliesen und kalibrierte Wandfliesen
- LED-Bad-Spiegel (Villeroy&Boch)
- Waschtischunterschrank von Keramag iCon
- Handtuchhaken, Toilettenpapierhalter
- Grosszügige Anzahl Steckdosen und Multimedia-Dosen (Kabel-Deutschland-HDTV/Radio/Internet/Telefon) von Busch-Jaeger Future Line
- Rauchmelder
- Digitale Türsprechanlage Elcom
- Neue Briefkastenanlage
- Vom Treppenhaus zugänglicher Hof mit neuem Zaun in Sibirischer Lärche
- Kellerräume mit neuem Estrich und neuen Holzgattertüren
Gallerie Ferdinand-Jost 43
© Copyright of all images | Peter Cerveny
